Quis autem vel eum iure reprehenderit qui in ea voluptate velit esse quam nihil molestiae lorem.
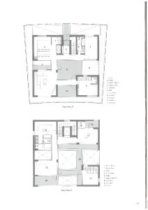
월간 인테르니데코에 정효빈 소장의 인터뷰와
단독주택 우주가 소개되었습니다.
[MAGAZINE] 월간 설계경기
[MAGAZINE] ARCHDAILY